David Avenue, Pontesbury, Shrewsbury
Property Features
- No pets
- 5/6 bedroom executive home
- 4 bathrooms including 3 ensuites
- Private drive
- Central village location
- Spectacular rear views
- Double garage
- Walking distance to local amenities
- Close to local transport links
- 8 miles from Shrewsbury
Property Summary
*PLEASE SEE VIRTUAL TOUR*
Full Details
The accommodation briefly comprises: a spacious entrance hall, a living room with wood burning stove, a kitchen/breakfast room, open plan dining room/snug, cloak room/WC, utility, an en-suited principal bedroom, two further en-suited bedrooms, three further double bedrooms, and a family bathroom. An integral double garage has up and over remote-controlled doors with parking and turning space to the front of the property. To the rear of the property, a neatly landscaped North facing garden offers impressive views.
Available now, no pets, EPC Rating 'C'
£1,950pcm Rent
£2,250 Deposit
£445 Holding Deposit
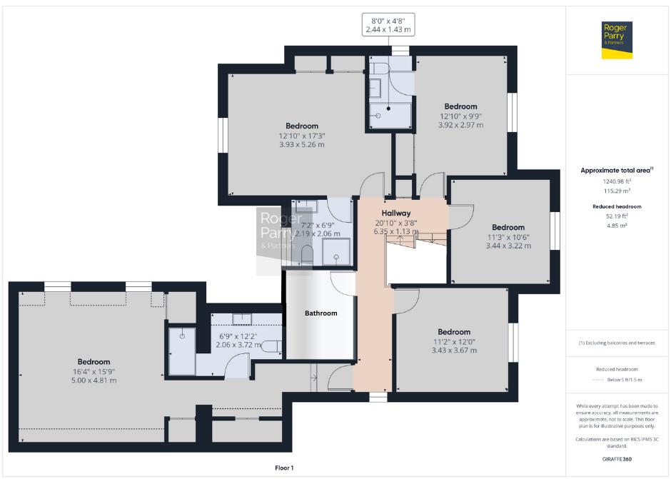
ENTRANCE HALL 1.53 x 4.05
RECEPTION HALL 2.78 x 4.66
LIVING ROOM 4.45 x 6.01
OPEN PLAN DINING ROOM / SNUG
KITCHEN 3.46 x 5.64
UTILITY ROOM 2.68 x 2.45
CLOAKROOM 1.16 x 1.71
LANDING
PRINCIPLE BEDRROM SUITE 5.00 x 4.81
ENSUITE 2.06 x 3.72
BEDROOM 2 3.93 x 5.26
ENSUITE 2.19 x 2.06
BEDROOM 3 3.92 x 2.97
ENSUITE 2.44 x 1.43
BEDROOM 4 3.44 x 3.22
BEDROOM 5 3.43 x 3.67
FAMILY BATHROOM
BEDROOM 6/STUDY 4.41 x 2.98
OUTSIDE / GARDENS
A long private drive approaches the property. At the front of the property, a large, paved parking area offers room for at least three cars and space to turn. An integral double garage has twin remote controlled up and over doors. To the rear, a wide paved patio continues into a lawn with excellent rear views of the surrounding countryside. An aluminium framed greenhouse sits alongside the patio.
EPC RATING C
For a full copy of the Energy Performance Certificate please contact agents.
COUNCIL TAX BAND G
Shropshire Council
TERM
Assured Shorthold Tenancy for a minimum period of 6 months
VIEWINGS
By appointment only through Roger Parry & Partners
MEASUREMENTS
All measurements mentioned in these lettings particulars are approximate
TENANCY DEPOSIT
Protected by The Deposit Protection Service, The Pavilions, Bristol, BS99 6AA
HOLDING DEPOSIT
PLEASE READ CAREFULLY. Before your application can be fully considered, you will need to pay Roger Parry & Partners a holding deposit equivalent to one weeks rent for the property you are interested in. It is important that you know your legal rights, you should feel free to seek independent legal advice before signing this, or indeed any other document that we put before you. Once we have your holding deposit, current legislation stipulates that the necessary paperwork should be completed within 15 days, a longer period will only be allowed when agreed upon by both parties. If at any time during that period you decide not to proceed with the tenancy, then your holding deposit will be retained by Roger Parry & Partners. By the same token, if during that period you unreasonably delay in responding to any reasonable request made by Roger Parry & Partners or Rightmove Landlord & Tenant Services, and if it becomes apparent that you have provided us with false or misleading information as part of your tenancy application, or if you fail any of the checks which the Landlord is required to undertake under the Immigration Act 2014, then again your holding deposit will not be returned. It will be retained by Roger Parry & Partners and your Landlord. However, if the Landlord decides not to offer you a tenancy for reasons unconnected with the above then your deposit will be refunded within seven days. Should you be offered and you accept a tenancy with our Landlord, then your holding deposit will be credited towards the first months' rent due under that tenancy.Where your holding deposit is neither refunded nor credited against any rental liability, you will be provided with written reasons for your holding deposit not being repaid within seven days.You will not be asked to pay any fees or charges in connection with your application for a tenancy. However, if your application is successful under our standard assured shorthold tenancy agreement, you will be required to pay certain fees for any breach of that tenancy agreement in line with the Tenant Fees Act 2019. In consideration of us processing your tenant application, you agree to pay those fees to us on request.
Please complete the form below and a member of staff will be in touch shortly.











































