Pen Y Cae Close, Gobowen, Oswestry
Property Features
- VILLAGE LOCATION
- NEAR GOBOWEN TRAINSTATION
- THREE BEDROOMS
- MODERN KITCHEN
- FRONT AND REAR GARDENS
- EPC RATING C
Property Summary
Full Details
LOCATION
The property is situated centrally within the popular village of Gobowen. The village has an excellent range of amenities including shops, post office, public houses, churches and primary school. Easy access onto the A5/A483 provides a direct link to the larger towns of Oswestry, Wrexham, Shrewsbury and the City of Chester. The village has a main line railway station which is a short walk from the property and provides services to Shrewsbury and Chester.
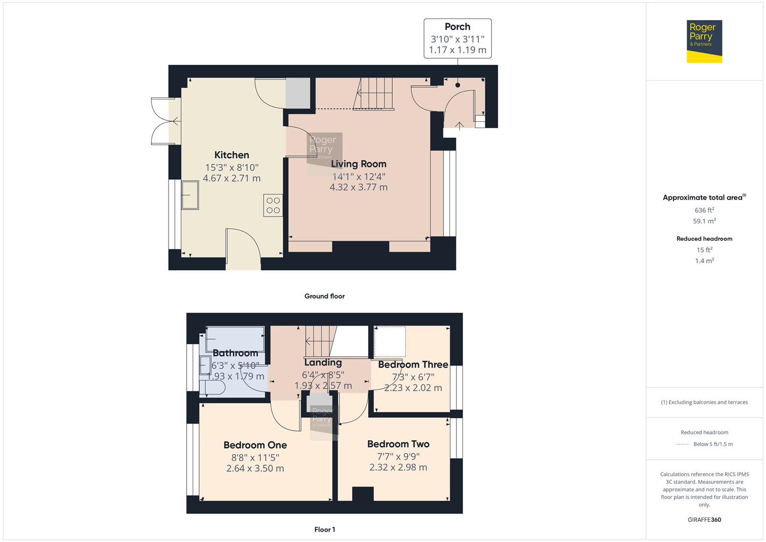
PORCH 1.17 x 1.19
A part glazed uPVC door from the front, wood effect flooring, radiator, stairs to first floor and door into;
LIVING ROOM 4.32 x 3.77
Light and airy room with uPVC window to the front, electric fire, two radiators, wood effect flooring, TV/telephone points, and door to:
KITCHEN 4.67 x 2.71
Modern fitted Kitchen comprising a range of wall and base units with granite effect worktops over and inset stainless steel sink with mixer tap and drainer. Integrated Bosch oven with hob and extractor hood over. Space/plumbing for fridge freezer and washing machine. Continuation of wood effect flooring, part tiled walls, radiator, understairs storage cupboard and glazed uPVC doors to rear gardens.
FIRST FLOOR
LANDING 1.93 x 2.57
With built in airing cupboard, ceiling light and doors off too;
BEDROOM ONE 2.64 x 3.50
With uPVC window to the rear, ceiling light and radiator.
BEDROOM TWO 2.32 x 2.98
UPVC window to the front, ceiling light and radiator
BEDROOM THREE 2.23 x 2.02
UPVC window to the front, ceiling light and radiator.
BATHROOM 1.93 x 1.79
White suite comprising panelled bath with shower over, wash hand basin and low level WC. UPVC window to the rear, part tiled walls, and radiator.
EXTERNAL
FRONT
Block paved driveway offering parking for several vehicles. Lawn garden with hedges and mature shrubs and plants.
REAR
A pedestrian gate provides access to the rear where a paved patio adjoins the property with lawned gardens beyond bordered by timber fencing and gravelled beds.
Agent Note
TENURE
We understand the tenure is Freehold. We would recommend this is verified during pre-contract enquiries.
SERVICES
We are advised that mains electric, water gas and drainage services are connected. We understand the Broadband Download Speed is: Standard 3 Mbps & Superfast 295 Mbps. Mobile Service: Good outdoor, Variable indoor. We understand the Flood risk is: Very Low. We would recommend this is verified during pre-contract enquiries.
COUNCIL TAX BANDING
We understand the council tax band is B. We would recommend this is confirmed during pre-contact enquires.
SURVEYS
Roger Parry and Partners offer residential surveys via their surveying department. Please telephone 01743 791 336 and speak to one of our surveying team, to find out more.
REFERRAL SERVICES: Roger Parry and Partners routinely refers vendors and purchasers to providers of conveyancing and financial services.
MONEY LAUNDERING REGULATIONS: When submitting an offer to purchase a property, you will be required to provide sufficient identification to verify your identity in compliance with the Money Laundering Regulations. Please note that a small fee of £24 (inclusive of VAT) per person will be charged to conduct the necessary money laundering checks. This fee is payable at the time of verification and is non-refundable.
Please complete the form below and a member of staff will be in touch shortly.

















