Ferrers Road, Oswestry
Property Features
- EPC RATING D
- FOUR BEDROOMS
- BATHROOM AND SHOWER ROOM
- CLOSE TO OSWESTRY CENTRE
- REAR GARDEN
Property Summary
Full Details
LOCATION
The area boasts excellent proximity to The Marches School, a variety of shops and amenities, making it a convenient and attractive choice.
Oswestry is a popular market town enjoying shopping facilities which serve the day to day needs of the area. Shrewsbury and Chester are both some half an hour drive. There is also a main line railway station at Gobowen, about 3 miles distance.
Rent £1,150 pcm
Deposit: £1,320
Holding Deposit: £260
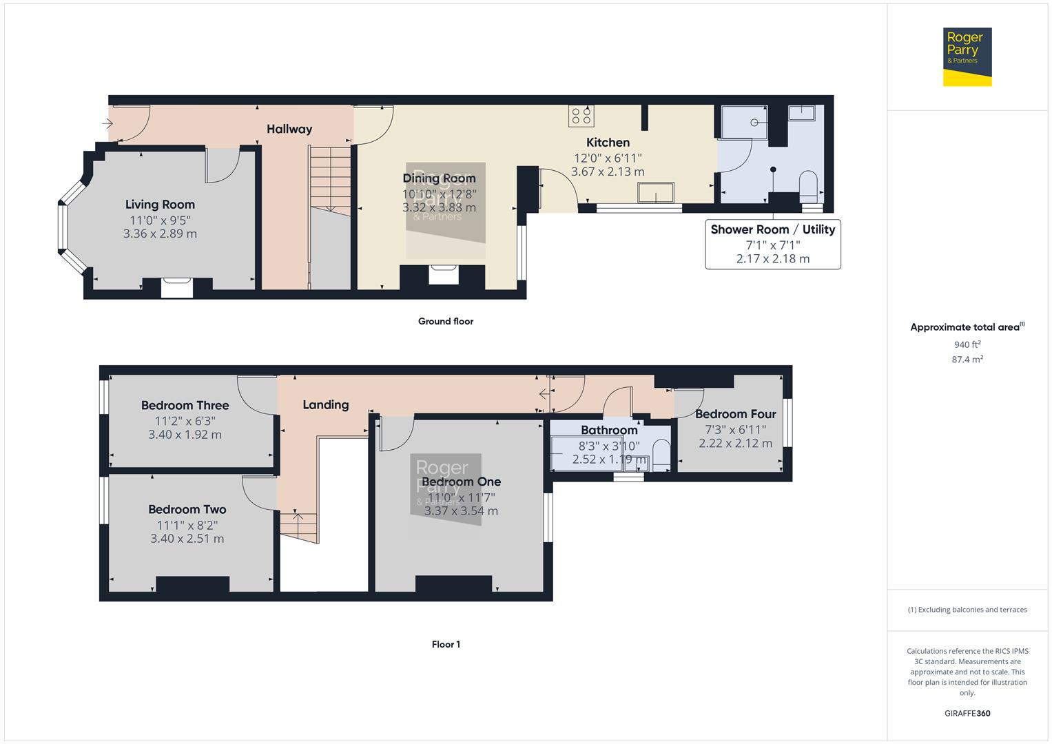
ENTRANCE HALL
Wood and glazed door through to the entrance hall. Wood flooring, ceiling light, door under the stairs which leads down to the cellar and stairs to first floor.
LIVING ROOM 3.35m x 2.87m
With bay window to the front, feature fireplace, radiator and ceiling light.
DINING ROOM 3.30m x 3.86m
Inset wood burner, tiled flooring, window to the rear, ceiling light and radiator. Opening into the kitchen.
KITCHEN 3.66m x 2.11m
Modern fitted kitchen with a range of wall and base units with work surfaces over, inset sink with mixer tap and drainer, integral oven with four ring hob and extractor hood. Void for appliances, door and window to the side, tiled flooring and spotlighting.
UTILITY ROOM/SHOWER ROOM 2.16m x 2.16m
Enclosed shower cubicle, low level WC and was hand basin. Work unit with void and plumbing below for washing machine. Window to the side, heated towel rail and ceiling light.
FIRST FLOOR
LANDING
BEDROOM ONE 3.35m x 3.53m
Window to the rear, ceiling light and radiator.
BEDROOM TWO 3.38m x 2.49m
Window to the front, ceiling light and radiator.
BEDROOM THREE 3.40m x 1.91m
Window to the front, ceiling light and radiator.
BEDROOM FOUR 2.21m x 2.11m
Window to the rear, shelving and hanging rail, ceiling light and radiator.
BATHROOM 2.51m x 1.17m
White suite comprising corner bath with shower over, low level WC and wash hand basin. Heated towel rail, extractor fan, spotlight, tiles to floor and walls and window to the side.
EXTERNAL
There is a rear courtyard leading off the kitchen which is gated. There is a pathway giving a right of way for the neighbouring properties to access the end of the terrace to take out the wheelie bins. There is then a further gravelled garden area with shed.
EPC Rating D
For a full copy of the Energy Performance Certificate please contact agents
Term
Assured Shorthold Tenancy for a minimum period of 12 months
Viewings
By appointment only through Roger Parry & Partners
Council Tax Band B
Shropshire Council
Measurements
All measurements mentioned in these letting particulars are approximate
Tenancy Deposit
Protected by The Deposit Protection Service, The Pavilions, Bristol, BS99 6AA
Holding Deposit
PLEASE READ CAREFULLY. Before your application can be fully considered, you will need to pay Roger Parry & Partners a holding deposit equivalent to one weeks rent for the property you are interested in. It is important that you know your legal rights, you should feel free to seek independent legal advice before signing this, or indeed any other document that we put before you. Once we have your holding deposit, current legislation stipulates that the necessary paperwork should be completed within 15 days, a longer period will only be allowed when agreed upon by both parties. If at any time during that period you decide not to proceed with the tenancy, then your holding deposit will be retained by Roger Parry & Partners. By the same token, if during that period you unreasonably delay in responding to any reasonable request made by Roger Parry & Partners or Rightmove Landlord & Tenant Services, and if it becomes apparent that you have provided us with false or misleading information as part of your tenancy application, or if you fail any of the checks which the Landlord is required to undertake under the Immigration Act 2014, then again your holding deposit will not be returned. It will be retained by Roger Parry & Partners and your Landlord. However, if the Landlord decides not to offer you a tenancy for reasons unconnected with the above then your deposit will be refunded within seven days. Should you be offered and you accept a tenancy with our Landlord, then your holding deposit will be credited towards the first months' rent due under that tenancy.Where your holding deposit is neither refunded nor credited against any rental liability, you will be provided with written reasons for your holding deposit not being repaid within seven days.You will not be asked to pay any fees or charges in connection with your application for a tenancy. However, if your application is successful under our standard assured shorthold tenancy agreement, you will be required to pay certain fees for any breach of that tenancy agreement in line with the Tenant Fees Act 2019. In consideration of us processing your tenant application, you agree to pay those fees to us on request.
Please complete the form below and a member of staff will be in touch shortly.





















